Studio Nyandak Studio Nyandak

Restoration of Kadhampa Chorten in Karsha, Zanskar

Studio Nyandak’s vernacular restoration of Kadhampa Chorten, a Painted Gateway Stupa in Karsha, Zanskar. Studio Nyandak completed this project with Professor Robert Linrothe, leading scholar of Western Himalayan Buddhist art.

Kadhampa Chorten before renovation (left) and after (right).

Studio Nyandak recently completed a pilot restoration of Kadhampa Chorten, located above Karsha Monastery in Zanskar. Kadhampa Chorten is of the Painted Gateway Stupa typology and houses ancient inner murals, including an Aksobhya mandala mural dating from the late 12th to early 13th century. The completed restoration project aims to safeguard Kadhampa Chorten’s precious sacred artwork and heritage using only vernacular building methods. Studio Nyandak completed this project with assistance from Professor Robert Linrothe, leading scholar of Western Himalayan Buddhist art.

Through local partnerships with the Karsha Monastery abbot Lobzang Khedup, the site’s caretaker Gelong Angchuk, local master builder and plasterer Ashang Cholden, and Zanskari Studio Nyandak team member Stanzin Stankong, the restoration successfully stabilized the Chorten, re-plastered its exterior, and protected its murals from water damage.

Local construction workers unload vernacular building materials transported by donkey at Kadhampa Chorten.

Local construction workers apply vernacular earthen plaster material to Kadhampa Chorten.

Architectural section of Kadhampa Chorten (Studio Nyandak 2025).

Kadhampa Chorten plan drawing (Studio Nyandak 2025).

Damage map of Kadhampa Chorten’s inner mural (Studio Nyandak 2025).

 
Read More
Studio Nyandak Studio Nyandak

Studies in Digital Heritage Publication: Nartang Monastery 3-D Reconstruction

We are pleased to announce that the paper Monastic Architectural Reconstruction From a 1962 U-2 Aerial Photograph of Nartang in Central Tibet,” published in Studies in Digital Heritage, is now publicly accessible.

We are pleased to announce that the paper Monastic Architectural Reconstruction From a 1962 U-2 Aerial Photograph of Nartang in Central Tibet,” published in Studies in Digital Heritage, is now publicly accessible.

The article (Ryavec, K., Bhum, Y., & Nyandak, T., 2025) presents a case study of Nartang Monastery, synthesizing historical research, archival aerial imagery, and architectural modeling to examine differences between the original monastery and its later reconstruction following destruction.

The paper features Studio Nyandak’s development of data-driven 3D architectural models derived from declassified 1962 U-2 aerial photography, using shadow analysis, georeferencing, and orthorectification to reconstruct building volumes and campus layout. The stylization of these digital models were informed by a wide range of Tibetan, Chinese, and Western primary sources, including historical guidebooks, architectural floor plans, thangka paintings, travel accounts, and archaeological surveys. Together, the methodology demonstrates an alternative approach to digital heritage modeling for sites that are no longer extant and lack sufficient photographic documentation, contributing new tools for the study and preservation of threatened cultural landscapes.

 
Read More
Studio Nyandak Studio Nyandak

Seismic Resilience in Dharamsala: Tibetan Civil Society Empowerment Program

Led by founding principal Tenzin Nyandak and supported by the Tibet Fund’s 2025 Tibetan Civil Society Empowerment Program, the project Designing the Non-Engineered: Seismic Resilience in Dharamsala, India addresses the urgent risks posed by non-engineered construction in the earthquake-prone city of Dharamsala.

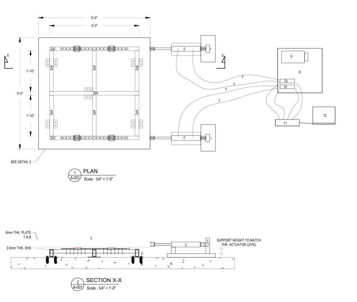
Led by founding principal Tenzin Nyandak and supported by the Tibet Fund’s 2025 Tibetan Civil Society Empowerment Program, the project Designing the Non-Engineered: Seismic Resilience in Dharamsala, India addresses the urgent risks posed by non-engineered construction in the earthquake-prone city of Dharamsala. Over the past year, Studio Nyandak adapted the U.S. Federal Emergency Management Agency’s (FEMA) Rapid Visual Screening (RVS) methodology to account for Dharamsala’s distinct building typologies, topography, and use patterns. In parallel, the team designed and constructed a small-scale shake table capable of simulating seismic activity, with the goal of developing low-cost retrofitting solutions for existing buildings in the region.

Shake table designed and built by Studio Nyandak’s Dharamsala office, and funded by Tibet Fund’s 2025 Tibetan Civil Society Empowerment Program

Studio Nyandak architect Tsering Yangchen assembles shake table using Studio Nyandak’s structural designs

The key objective of the initial risk assessment phase was to develop an accurate, regionally specific methodology suitable for implementation by local stakeholders that provides a strong foundation for informed retrofitting strategies. To meet these goals, the team designed a two-part framework that (1) evaluates structural vulnerability through an accessible rapid visual assessment and (2) quantitatively measures the degree and type of community usage for each building. This method was successfully implemented at three buildings at Delek Hospital and at the Upper Tibetan Children’s Village (Upper TCV), where a campus-wide risk map was developed for 25 of the most frequently used buildings.

Mapped risk results from Studio Nyandak’s application of FEMA’s Level 2 rapid visual screening method at Upper Tibetan Children’s Village in Dharamsala, India

 

The final phase of the project—the construction of a small-scale shake table—was guided by the same intention of enabling local-level implementation at key community institutions. After the risk assessment phase concluded in June 2025, Studio Nyandak’s Founding Principal, Tenzin Nyandak, traveled to Dharamsala alongside international expert engineers. They worked with Studio Nyandak’s Dharamsala team to develop early designs for the shake table.

 

During their visit, the consultants also presented their expertise in engineering for high-risk seismic zones at a conference co-hosted by Studio Nyandak and the Library of Tibetan Works and Archives (LTWA).

While the scope of this grant is now complete, Studio Nyandak will continue this work and engage the broader Dharamsala community in efforts to design, engineer, and construct safer infrastructure. The concluding sections outline planned next steps beyond this grant cycle. Studio Nyandak is deeply grateful to Tibet Fund for making this work possible.

Studio Nyandak's shake table design plans

 
Read More
Studio Nyandak Studio Nyandak

Living Sanctuaries: Past and upcoming Documentary Screenings

Our team at Studio Nyandak is delighted to have now shared the documentary Living Sanctuaries, made by the Tibetan filmmaker collective, Drung, with audiences across NYC and Dharamsala, India.

The documentary Living Sanctuaries: The Monasteries of Zanskar follows Studio Nyandak as they undertake a research expedition to document ancient Buddhist monasteries and nunneries in Zanskar and engage with the people who sustain them. Working in partnership with scholars and local community members, the team conducts architectural surveys, oral history interviews, and site assessments to better understand both the resilience and the vulnerability of Zanskar’s built heritage.

At a time when the region faces mounting pressures from seismic risk, climate change, and shifting demographics, Living Sanctuaries explores the cultural and environmental significance of these sacred sites. The film weaves together fieldwork, reflection, and local voices to illuminate the complexities of preservation in a landscape where history, devotion, and architecture remain deeply intertwined.

Scene of Karsha Monastery from Living Sanctuaries.

Our team at Studio Nyandak is delighted that we have now shared Living Sanctuaries, made by the Tibetan filmmaker collective, Drung, with audiences across NYC and Dharamsala, India. Most recently, on January 23rd 2026, Studio Nyandak co-hosted a screening with Tibet House in New York City. Attendance for the screening was at full capacity, and it was followed by a Question & Answer session with Tenzin Nyandak, moderated by Dr. Lauran Hartley (Director, Modern Tibetan Studies Program at Columbia University). Studio Nyandak’s team is grateful for the time and space Tibet House provided for this free, publicly attended screening. This followed an October 2025 screening of the film and proceeding panel discussion at Columbia University, co-hosted by the Modern Tibetan Studies Program and Graduate School of Architecture, Preservation, and Planning.

January 2026 Living Sanctuaries screening at Tibet House NYC.

Looking forward, the documentary will be shown at INALCO in Paris in March 2026. It will also be featured as Tricycle’s May 2026 Film Club film. Please email info@nyandak.com with any questions about these screenings, or with interest in collaborating with out team to show this film.

Living Sanctuaries: The Monasteries of Zanskar was produced and directed by Drung, a nonprofit film collective based in Dharamsala, with support from Folkstreams and the National Endowment for the Arts.

 
Read More
Studio Nyandak Studio Nyandak

Spiral Article: Tibet from Above

The Rubin Museum Spiral Magazine article Tibet from Above, by Tenzin Nyandak and Yumtsokyi Bhum, details Studio Nyandak’s methodology for their Rubin Museum supported research project.

The Rubin Museum Spiral Magazine article Tibet from Above , by Tenzin Nyandak and Yumtsokyi Bhum, details Studio Nyandak’s methodology for their Rubin Museum supported research project. This ongoing project digitizes high-resolution images of historic Tibetan Buddhist monasteries through the in-person scanning of thousands of archival film frames at the National Archives and Records Administration. Results from this work are available for public access and download on Studio Nyandak’s website.

U2 image of Narthang Gonpa in U-Tsang, Central Tibet

Read More
Studio Nyandak Studio Nyandak

Tibetan Youth Festival

Studio Nyandak is proud to have spearheaded the design and construction management for the festival, Tibetan Youth Tenshug. Their original designs centered around the festival’s themes of damtshik (devotion), drelam (connection), and ghazom (celebrative gathering).

The Tibetan Youth Tenshug was organized in September, 2025 in Dharamsala, India by a collaboration between local Tibetan community organizations. Tenshug in Tibetan refers to the long-life prayer offered to His Holiness the 14th Dalia Lama. This festival united youth across the Tibetan diaspora in this long-standing tradition and hosted collaborative programming to help facilitate community networks.

Studio Nyandak is proud to have spearheaded the design and construction management for the festival’s infrastructure in close collaboration with its organizers. The design centered around the festival’s themes of damtshik (devotion), drelam (connection), and ghazom (celebrative gathering). Some of Studio Nyandak’s festival constructions included a courtyard inspired by the Potala Palace’s, an origami representation of three major rivers that begin in Tibet (Machu, Drichu, and Dzachu), and a tensegrity art installation.

As part of the festival, Studio Nyandak also hosted a workshop and a screening of the new documentary, “Living Sanctuaries: Buddhist Monasteries of Zanskar,” about their architectural documentation fieldwork in Zanskar, Ladakh.

Studio Nyandak engineer Dechen Tsogyal and Founding Principal Tenzin Nyandak construct a bamboo tensegrity structure in front of Studio Nyandak’s courtyard design.

Studio Nyandak’s origami river flows above a monk presenting on Tibetan Buddhist philosophy to festival youth.

Performers in front of Studio Nyandak-crafted stage facade.

Tenzin Nyandak speaks on Youth Tenshug panel.

 
Read More
Studio Nyandak Studio Nyandak

Rubin X Research 2025

Studio Nyandak received their second Rubin X Research grant in 2025 to support ongoing architectural documentation and preservation work in Zanskar, Ladakh.

Studio Nyandak received their second Rubin X Research grant in 2025 to support ongoing architectural documentation and preservation work in Zanskar, Ladakh.

This grant will fund Studio Nyandak’s fourth field trip to Zanskar, to be joined by their team of international collaborators. These collaborators include experts in historic preservation, conservation, architecture, historical geography, art history, archeology, and structural engineering. The field work will inform Studio Nyandak’s completion of architectural documentation for 10 Buddhist monasteries and nunneries.

Karsha Monastery, Zanskar

Studio Nyandak’s architectural documentation drawings at Karsha Monastery

 
Read More
Studio Nyandak Studio Nyandak

Columbia University Guest Lecture

Founding Principal Tenzin Nyandak’s guest lecture on traditional Tibetan architecture at Columbia University.

Studio Nyandak’s Founding Principal, Tenzin Nyandak, was invited to be a guest lecturer for the class, Introduction to Tibetan Civilization, at Columbia University. Nyandak’s presentation covered the foundations of traditional Tibetan architecture, including its history, variations by geographical location, and differences in building typologies.

Tenzin Nyandak’s guest lecture on October 2nd, 2025

Presentation contents

 
Read More
Studio Nyandak Studio Nyandak

Columbia University Film Screening: Living Sanctuaries (2025)

An early screening of Living Sanctuaries: the Buddhist Monasteries of Zanskar, a documentary on our ongoing fieldwork in the Western Himalaya, was held at Columbia University on October 3rd, 2025.

An early screening of Living Sanctuaries: the Buddhist Monasteries of Zanskar, a documentary on our ongoing fieldwork in the Western Himalaya, was held at Columbia University on October 3rd, 2025. It was followed by a discussion featuring Prof. Gray Tuttle (Professor and Chair, East Asian and Languages and Cultures, Columbia University), Sonal Beri (Associate Professor at GSAPP), and Tenzin Nyandak (Founding Principal, Studio Nyandak).

The event was hosted in collaboration with Columbia University’s Graduate School of Architecture, Planning, and Preservation (GSAPP) and Modern Tibet Studies Program, and drew over 170 attendees.

Please see a short description of Living Sanctuaries below, and continue to check our News page for updates on future screenings in NYC and elsewhere:

Living Sanctuaries: The Monasteries of Zanskar (2025)

Directed by Tenzin Tsetan Choklay at Drung Tibetan Film Collective.

High in the Western Himalaya, the Zanskar Valley is home to a remarkable architectural tradition shaped by centuries of Buddhist practice, extreme climate, and geographic isolation. At elevations nearing 13,000 feet, its monasteries and nunneries are not only places of worship but living records of Tibetan and Himalayan craftsmanship—built from earth and stone, adorned with vibrant murals and intricately carved woodwork.

Living Sanctuaries follows Studio Nyandak—an architecture and engineering firm based in New York City and Dharamshala—as they undertake a research expedition to document these structures and engage with the people who sustain them. Working in partnership with scholars and local community members, the team conducts architectural surveys, oral history interviews, and site assessments to better understand both the resilience and the vulnerability of Zanskar’s built heritage.

At a time when the region faces mounting pressures from seismic risk, climate change, and shifting demographics, Living Sanctuaries explores the cultural and environmental significance of these sacred sites. The film weaves together fieldwork, reflection, and local voices to illuminate the complexities of preservation in a landscape where history, devotion, and architecture remain deeply intertwined.

 
Read More
Studio Nyandak Studio Nyandak

Khyentse Foundation Ashoka Grant 2025

Studio Nyandak was selected by the Khyentse Foundation for the 2025 Ashoka Grant program. The grant will support the final stage of Temples of Tibet, a project dedicated to documenting and verifying the precise locations of Tibetan monasteries lost since the mid-20th century.

As part of the 2025 Ashoka Grant program, the Khyentse Foundation will support Studio Nyandak in completing the final stage of Temples of Tibet, a project dedicated to documenting and verifying the precise locations of Tibetan monasteries lost since the mid-20th century.

The grant will specifically fund research coordinated by Studio Nyandak’s Dharamsala office, cross-referencing historical records, conducting interviews with elder monks, and applying GIS technology to confirm exact geographic coordinates.

Over the past 2 years, we have verified over 1,700 monastery locations with the help of our translators and research collaborators (BDRC, Treasury of Lives, Prof. Karl Ryavec, Prof. Gray Tuttle and Tsering Wangyal Shawa). The Ashoka Grant will enable us to complete the remaining work within the next year.

Studio Nyandak team interviewing an elder monk about the history of now destroyed Tibetan Monasteries.

Map of Temples of Tibet’s currently verified and identified Tibetan Buddhist monasteries.

Snapshot of Temples of Tibet’s geographic database.

 
Read More
Náyade Náyade

Field Trip to Zanskar 2025

On Studio Nyandak’s third field trip to Zanskar, we were accompanied by an international team of experts in the fields of heritage conservation, art history, historical geography, preservation engineering and structural engineering.

In July 2025, Studio Nyandak embarked on a third field trip to Zanskar, northern India, to continue documentation and preservation design at eight centuries-old Buddhist monasteries. On this trip, we were accompanied by an international team of experts in the fields of heritage conservation, art and architectural history, historical geography, and structural engineering.

This team included Dr. John Harrison (Honorary Research Fellow, University of Liverpool), Dr. Ingun B. Amundsen (Independent Researcher, Norway), Dr. Robert Linrothe (Art Historian, Northwestern University), Dr. Javier Ortega Heras (Researcher, Spanish National Research Council), Marieta Núñez García (Co-Founder, FENEC), Paul Laroque (Structural Engineer, Paris & NYC), Dr. Karl Ryavec (Professor, UC Merced), and Sandeep Sikka (Principal, Architectural Preservation Studio).

Each architect and engineer from Studio Nyandak’s Dharamsala office spent a week at one Zanskar monastery/nunnery, drawing floor plans, sections, elevations, site plans and existing conditions. Throughout the week, the team of experts visited each of the nine monasteries and nunneries to study their structures, learn from their monks and caretakers, and offer consultation to Studio Nyandak’s members.

Like many other vernacular mud-brick buildings in Zanskar, every monastery/nunnery that Studio Nyandak is documenting has suffered significant water damage. This damage is largely caused by the region’s changing climatic patterns, such as increased precipitation. Some monasteries, especially Karsha Monastery, suffered severe damages from seismic activity. Through the first project phase of architectural documentation, we aim to create a record of the threatened built heritage that Zanskar’s Buddhist monasteries embody. In the next phase, started during this most recent field trip, we will identify and analyze damages at the monasteries with the goal of informing future repair work.

Aside from advising documentation and damage mapping, Studio Nyandak’s collaborators contributed invaluably to deepening our understanding of these sites and their historical contexts. From analyzing murals, mapping the local cultural landscape, soil testing for material analysis, radiocarbon dating key timber structural elements, and conducting non-destructive structural testing, the Zanskar 2025 team consultants supplemented Studio Nyadak’s project with in-depth and multidisciplinary research. We look forward to continuing contextualizing our documentation through these enriching research collaborations.

Tenzin Nyandak shows a Karsha Gonpa treasurer Studio Nyandak’s architectural documentation of the Monastery.

Dr. Rob Linrothe and a Gen Rigzin Samphel la at Bardan Gonpa analyze the murals in the main assembly hall of the Monastery.

Architect and earthen materials expert Sandeep Sikka conducts a workshop on local soil and clay.

FENEC co-founders Marieta Núñez García and Dr. Javier Ortega Heras conduct sonic testing as part of a nondestructive structural analysis at Bardan Gonpa.

 
 


 
Read More
Náyade Náyade

Conference on Tibetan Architectural Heritage and Dharamsala Earthquake Resilience

Studio Nyandak hosted a 2-day conference with international speakers in the fields of engineering, architectural preservation, and historical geography in collaboration with the Library of Tibetan Works and Archives in Gangkyi, Dharamsala.

Over July 24-25 2025, Studio Nyandak hosted a 2-day conference with international speakers in the fields of engineering, architectural preservation, and historical geography in collaboration with the Library of Tibetan Works and Archives in Gangkyi, Dharamsala.

On the first day, architects and historians discussed traditional architecture in the Himalaya, conservation projects, and ongoing efforts for documenting Tibet’s historical landscape. The second day of talks was presented by engineers and historic building conservationists. They focused on the risks that earthquakes pose to Dharamsala’s typical building typography and possibilities for retrofitting and reinforcement methods tailored to local specifications.

Studio Nyandak is grateful to the Library of Tibetan Works and Archives and its Director Geshe Lhakdor la for the collaboration and support, and to all the speakers for sharing their time and expertise.  

The first day of talks, entitled “Architectural Heritage of Tibet and the Himalaya,” featured the speakers Dr. Ingun B. Amundsen, Dr. John Harrison, Dr. Karl Ryavec, and Studio Nyandak.

Dr. Amundsen is an independent researcher from Norway who has consulted Studio Nyandak’s team on their architectural documentation of Buddhist monasteries in Zanskar, Ladakh. In addition to outlining this work in Zanskar, Dr. Amundsen discussed her dissertation on Buddhist sacred architecture in Bhutan.

Dr. Harrison, an honorary research fellow at the University of Liverpool and an architectural conservationist known for his work preserving Himalayan built heritage, discussed his field experience at heritage sites in Ladakh, Mustang, and Lhasa.

Dr. Ryavec, professor at University of California, Merced, followed with a discussion of his approach to historical geography and a preview of early findings from his upcoming A Historical Atlas of Kham, a subsequent volume to his book A Historical Atlas of Tibet.

Tenzin Nyandak, Gangchen Dolma, and Yumtsokyi Bhum from Studio Nyandak ended the first day of the conference with insights into Studio Nyandak’s methodology for and applications of Tibet from Above, a collaborative project conducted alongside Professor Ryavec and supported by the Rubin Museum, and which digitizes declassified CIA aerial images of Tibet’s landscape in the 1950s-60s.

Speakers on the second day of the conference, “Earthquake Resilience in Dharamsala,” included Studio Nyandak, Paul Laroque, Dr. Javier Ortega Heras, and Marieta Núñez García.

Dechen Tsogyal and Choeyang, civil engineers at Studio Nyandak’s Dharamsala office, started the day with a discussion of the primary risks associated with living in a seismic prone region such as Dharamsala, and accessible, rapid visual screening methods for assessing an individual structure’s level of risk.

Structural engineer and assistant professor at Columbia University and Pratt Institute, Paul Laroque, then delved into an explanation of the risks behind non-engineered concrete constructions, and the benefits of reinforced concrete design for seismic risk mitigation.

Dr. Ortega Heras, a researcher at the Spanish National Research Council, discussed another building typology common to Dharamsala—unreinforced masonry—and non-destructive methods for testing its vulnerability.

Lastly, Marieta, co-founder of the Madrid-based structural engineering non-profit FENEC, concluded the conference with a talk on the value of architectural heritage preservation, specifically for historical timber structures.

Please see below for full recordings of the talks published by The Library of Tibetan Works and Archives (LTWA), and an interview with Geshe Lhakdor and Studio Nyandak conducted by the Dharamsala-based news source Phayul. Phayul also published an overview of the talks on earthquake resilience, Tibet Times covered both days one and two of the conference proceedings, and Voice of  Tibet released an interview with Tenzin Nyandak on the conference and Studio Nyandak’s ongoing research.

 

Day 1

 
 

Day 2


 
Read More
Náyade Náyade

Research trip to the national archives (NARA)

Studio Nyandak recently travelled to the National Archives and Records Administration (NARA) in Maryland with Prof. Karl Ryavec and U2 expert Lin Xu to obtain and digitize the U2 spy plane images of Tibet taken in 1950s and 1960s. This is part of our Tibet from above research. This research trip was funded by the generous support from the Rubin Museum’s 2024 Rubin x Research.

We were able to obtain more than 8,000 images of Tibetan plateau spanning from western Himalaya to the Tso Ngönpo (Tib: མཚོ་སྔོན་པོ་, Wylie: mtsho sngon po, Eng: Lake Kokonor, Chinese: 青海湖) in Amdo region in eastern Tibet. We are working on processing and geolocating the images and will make them publicly available.

Studio Nyandak recently travelled to the National Archives and Records Administration (NARA) in Maryland to obtain and digitize the U2 spy plane images of Tibet taken during the 1950s and 1960s. This is part of our Tibet from above research. Our research trip was funded by the generous support from the Rubin Museum’s 2024 Rubin x Research program, and conducted alongside our project collaborators, Professor Karl Ryavec from University of California Merced, and U2 aerial imagery expert, Lin Xu.

We obtained more than 8,000 images of the Tibetan plateau spanning from Gang Rinpoche (Tib: གངས་རིན་པོ་ཆེ, Sanskrit: कैलास, Eng: Mount Kailash) in western Tibet to the Tso Ngönpo (Tib: མཚོ་སྔོན་པོ་, Eng: Lake Kokonor) in Amdo region of eastern Tibet. We are working on processing and geolocating the images and will make them publicly available in the coming months.

 
Read More
Náyade Náyade

International Campaign for Tibet: Rowell Fund for Tibet grant

Studio Nyandak was selected to receive the International Campaign for Tibet’s 2024 Rowell Fund for Tibet grant to support documentation, research and preservation of Zanskar’s Buddhist monasteries and nunneries.

This seed money will allow us to obtain radiocarbon dating of wood samples from these monasteries and nunneries that were built around 1,000 years ago. Determining the exact ages of these structures will help us better understand the history of these important Buddhist sites.

Studio Nyandak was selected to receive the International Campaign for Tibet’s 2024 Rowell Fund for Tibet grant to support documentation, research and preservation of Zanskar’s Buddhist monasteries and nunneries.

This seed money will allow us to obtain radiocarbon dating of wood samples from these monasteries and nunneries that were built around 1,000 years ago. Determining the exact ages of these structures will help us better understand the history of these important Buddhist sites.

 
Read More
Náyade Náyade

Tibet Fund Research grant

Studio Nyandak won a small grant from the Tibet Fund to design and build an earthquake shake/shock table in Dharamsala. This grant is in support of our ongoing research project, Low-cost Earthquake Resilient Structures.

Our project focuses on conducting comprehensive risk assessments and developing innovative earthquake resilience interventions for key anchor institutions within Dharamsala, the heart of the India’s Tibetan exile community. Situated at the foothills of the seismically active Himalayas, Dharamsala is inherently at high risk for earthquakes due to its location near tectonic fault lines and its sloping terrain. Home to roughly 10,000 Tibetans, it serves as the central hub of the Tibetan exile community, amplifying the potential impact of seismic events.

Many essential community buildings in Dharamsala—including schools, hospitals, museums and monasteries—are non-engineered and vulnerable to seismic events. We are developing low-cost, high-impact retrofitting solutions that are locally adaptable, ensuring the safety and resilience of critical infrastructure while safeguarding the community’s cultural and social fabric.

Studio Nyandak won a small grant from the Tibet Fund to design and build an earthquake shake/shock table in Dharamsala. This grant is in support of our ongoing research project, Low-cost Earthquake Resilient Structures.

Our project focuses on conducting comprehensive risk assessments and developing innovative earthquake resilience interventions for key anchor institutions within Dharamsala, the heart of the India’s Tibetan exile community. Situated at the foothills of the seismically active Himalayas, Dharamsala is inherently at high risk for earthquakes due to its location near tectonic fault lines and its sloping terrain. Home to roughly 10,000 Tibetans, it serves as the central hub of the Tibetan exile community, amplifying the potential impact of seismic events.

Many essential community buildings in Dharamsala—including schools, hospitals, museums and monasteries—are non-engineered and vulnerable to seismic events. We are developing low-cost, high-impact retrofitting solutions that are locally adaptable, ensuring the safety and resilience of critical infrastructure while safeguarding the community’s cultural and social fabric.

 
Read More
Náyade Náyade

TCV Career Counseling

Our Studio Nyandak Dharamsala team recently visited the Tibetan Children’s Village school at Bir and Mewoen Tsuglag Petoen School in Dharamsala to give a career counseling presentation. Our team members talked about their work at Studio Nyandak and encouraged students to use their education to give back to society!

This work is part of our ongoing collaboration with the TCV School network and our support of the Tibetan community in exile.

Our Studio Nyandak Dharamsala team recently visited the Tibetan Children’s Village school at Bir and Mewoen Tsuglag Petoen School in Dharamsala to give a career counseling presentation. Our team members talked about their work at Studio Nyandak and encouraged students to use their education to give back to society!

This work is part of our ongoing collaboration with the TCV School network and our support of the Tibetan community in exile.

 
Read More
Náyade Náyade

Rubin Museum Research grant

Studio Nyandak and Prof. Karl Ryavec were recently awarded a research grant by the Rubin Museum to obtain, analyze and present declassified U-2 spy plane images dating back to late 1950s.

This grant is in support of our ongoing research project, Tibet from Above, which sheds light on the profound changes to Buddhist and Bonpo monasteries during the Cultural Revolution.

Studio Nyandak and Prof. Karl Ryavec were recently awarded a research grant by the Rubin Museum to obtain, analyze and present declassified U-2 spy plane images dating back to late 1950s.

This grant is in support of our ongoing research project, Tibet from Above, which sheds light on the profound changes to Buddhist and Bonpo monasteries during the Cultural Revolution.

Tibet from Above
 
Read More
Náyade Náyade

Columbia University Tibetan Rural Green Business Training and Exchange program

Two team members from our Dharamsala office, Gangchen Dolma and Tsering Yangchen, were selected as fellows for 2024 Columbia University Tibetan Rural Green Business Training and Exchange program. They will travel to the US in October 2024 to learn about sustainability and entrepreneurship.

Two team members from our Dharamsala office, Gangchen Dolma and Tsering Yangchen, were selected as fellows for 2024 Columbia University Tibetan Rural Green Business Training and Exchange program. They will travel to the US in October 2024 to learn about sustainability and entrepreneurship.


Columbia Rural Green Exchange Program
Columbia Rural Green Exchange Program 2



 
Read More
Náyade Náyade

Zanskar Monastery Documentation Trip Sep 2024

Our Studio Nyandak Dharamsala team went back to Zanskar to continue documentation of the Valley’s monasteries and nunneries. They drew the elevations and sections and documented the damage of each monastery's main chapel building. See more about this research project here!

Our Studio Nyandak Dharamsala team went back to Zanskar to continue documentation of the Valley’s monasteries and nunneries. They drew the elevations and sections and documented the damage of each monastery's main chapel building. See more about this research project here!


Zanskar Monastery Documentation
Zanskar Monastery Documentation 2



 
Read More
Náyade Náyade

Rato Dratsang Abbot Office Visit

The abbot of the Rato Dratsang visited our Dharamsala office to discuss the ongoing Rato Dratsang campus design.

The abbot of the Rato Dratsang visited our Dharamsala office to discuss the ongoing Rato Dratsang campus design.


Rato Dratsang Abbot Visit
Rato Dratsang Abbot Visit 2



 
Read More